貸倉庫(貸し倉庫)、貸工場(貸し工場)の検索サイト。大阪、兵庫、京都、奈良など、関西の工場・倉庫を検索!(賃貸借物件)

Eメールでのお問い合わせ : toiawase@sanki.info

見え~る!倉庫広場 関西 貸倉庫・貸工場・貸土地

関西エリア : 06-6304-0999 関東エリア 03-5200-0999 土曜日・日曜日も営業 ■営業時間:9:00~17:30 ■定休日:祝日・年末年始・お盆
※土・日曜日については交代制出勤につき、電話受付のみ (9:00~17:30)
自動応答ではなく、スタッフが直接お電話で対応いたします。

お問い合わせ

駐車スペース付 キュービクル有
物件番号 3349653 物件種目 工場

※写真未撮影のため、ストリートビューの写真を表示しています。

  • 物件写真
  • 概略地図
  • 人口統計
  • 契約までの流れ
事前連絡無しの現地訪問はご遠慮ください
所在地 大阪府豊能郡能勢町倉垣
賃料(月額) 99万円77万円 ※値下げ(坪単価:1,459円)消費税込み
保証金・解約引き等 保証金:6ヶ月 解約引き:2ヶ月
建物面積
土地面積
1,743.91m²/527.53坪
1,721.06m²/520.62坪
構造/階数 鉄骨造/2階建ての1~2階部分
用途地域 市街化調整区域
用途地域について
登録日 ? 2026年2月5日
沿線/駅 能勢電鉄/妙見口駅
阪急バス「上田尻」バス停より徒歩10分
高速道路出入口 新名神高速道路 箕面とどろみから約16km
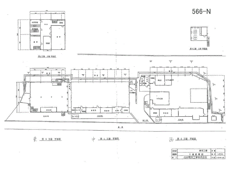
各階面積 1F:1,463.11m²/442.59坪 2F:280.8m²/84.94坪
道路幅員 北 4m 駐車場
現況 空家 引渡し 即時
築年月 1972年9月
契約期間 相談 都市計画 市街化調整区域
建築確認
設備関連 上水道・浄化槽・キューピクル(借主使用中) 事務所有
周辺状況 近隣民家無
その他 *(東棟)昭和47年9月築・2階建て566.10㎡
 (中棟)築年月日不詳・平家建540.00㎡
 (西棟)昭和61年6月築・平家建637.81㎡
*天井高:(東棟)1階3.3m 2階2.5m(西棟)1階3.25m
*現況部品製造エ場稼働中
*隣接駐車場15~20台相談可(別途契約要)
*阪神高速「池田木部」出口車約30分、新名神高速「川西」出口車約20分
前テナント様業種
取引態様 仲介
大型車輌 不可 ヤード
近隣住宅 プラットホーム
事務所 クレーン -
リフト/EV -
初期費用シミュレーション概算
※概算となりますので、実際の初期費用等に関してはお気軽にお問い合わせ下さい。

賃料

770,000円

仲介手数料

770,000円

保証会社金額

770,000円

保証金

4,620,000円

敷金

0円

礼金

0円

日割り賃料


※日割り賃料は1ヶ月を
30日換算で計算しております。

合計:6,930,000円
■ ご利用上の注意
  1. 事前連絡なしの現地への突然の訪問はご遠慮ください。
    募集物件ごとに前テナント入居中・家主事情・テナントの諸事情等もあり、ごくまれですが、直接物件を見に行かれた事によるトラブルが発生しています。
    現地、見に行かれる際は、必ず事前に弊社担当者までご連絡ください。
  2. 現地業者看板には直接連絡しないでください。
    現地看板に連絡されますと仲介手数料の2重請求となってしまう恐れがあります。
    物件についての質問等は必ず弊社(三基建設)TEL 06-6304-0999 までご連絡ください。

    メールでのご質問は toiawase@sanki.info まで
  3. 設備について
    必ずしも法令に基づく届け出等がされていないものもあります。契約時には必ず弊社担当までご確認ください。
  4. 前テナント様業種について
    必ずしも営業可能な業種とは限りませんので用途地域の制限等弊社担当までご確認ください。
  5. 大型車両欄の「可」の表示については前面道路幅員が概ね6m以上の道路として住宅地図上から判断したものです。実際については現地をご確認ください。
  6. 近隣住宅欄の「無」の表示については住宅地図上で隣接する住宅が無く、10m以下の道路を挟んだ向かいに住宅が無いことを基準にしております。実際については現地をご確認ください。
  7. 2階面積が1階面積の3分の1の建物には平家建と記載しております。
  8. 「全文キーワード」による検索は、大型車両・近隣住宅などの「可・不可」「有・無」の項目は検索されません。
  9. 高さ・土地面積について
    高さ等の寸法について、必ずしも現地を計測したものではない場合があります。実際については現地をご確認ください。
    土地面積については航空写真等を利用し計測した概算面積を記載している物件もあります。予めご了承願います。
  10. 賃料以外に、共益費・電気基本料等、家主様に支払うべき費用が発生する場合があります。
    掲載には充分注意しておりますが、入居の際には弊社担当者にご確認ください。
  11. 本ページ更新中に成約することもございます。あらかじめ御了承ください。
この物件に対する問い合わせ
複数の物件を問い合わせされる場合は、お気に入り登録からの一括問い合わせをご利用ください。
※「①」や「㈱」等の機種依存文字は文字化けすることが多いのでなるべくお控えください。

お気に入り一括問い合わせはこちらから
貴社名 担当者名とどちらか必須入力
ご担当者名 会社名とどちらか必須入力
業種 必須入力
お電話番号 必須入力
E-mail 必須入力
移転区分 必須入力
必要なもの
(複数選択可)
  •  
お問い合わせ内容
個人情報の取り扱いをご確認ください。

Eメールでのお問い合わせ : toiawase@sanki.info

三基建設株式会社

三基建設株式会社 本社

〒532-0011 大阪市淀川区西中島1-13-15 SANKIビル [ MAP ]
TEL : 06-6304-0999 / FAX : 06-6304-7384

三基建設株式会社 堺店

〒590-0018 堺市堺区今池町2丁7番16号 [ MAP ]
TEL : 072-233-0999 / FAX : 072-233-0997

当社は大阪府宅地建物取引業協会会員です。[ 宅建協会HP ]
宅建協会新大阪支部に登録されています。[ 新大阪支部HP ]

Copyright © SANKIKENSETSU CO.LTD. All right reserved. Designed by ACCESSWEB INC.