貸倉庫(貸し倉庫)、貸工場(貸し工場)の検索サイト。大阪、兵庫、京都、奈良など、関西の工場・倉庫を検索!(賃貸借物件)

Eメールでのお問い合わせ : toiawase@sanki.info

見え~る!倉庫広場 関西 貸倉庫・貸工場・貸土地

関西エリア : 06-6304-0999 関東エリア 03-5200-0999 土曜日・日曜日も営業 ■営業時間:9:00~17:30 ■定休日:祝日・年末年始・お盆
※土・日曜日については交代制出勤につき、電話受付のみ (9:00~17:30)
自動応答ではなく、スタッフが直接お電話で対応いたします。

お問い合わせ

幹線道路沿いの好立地♪大型車の出入りや荷物の取り扱いにも便利な、駅近の貸土地物件です
物件番号 3354639 物件種目 貸土地
  • 物件写真
  • 概略地図
  • 人口統計
  • 地図上確認
  • 契約までの流れ
事前連絡無しの現地訪問はご遠慮ください
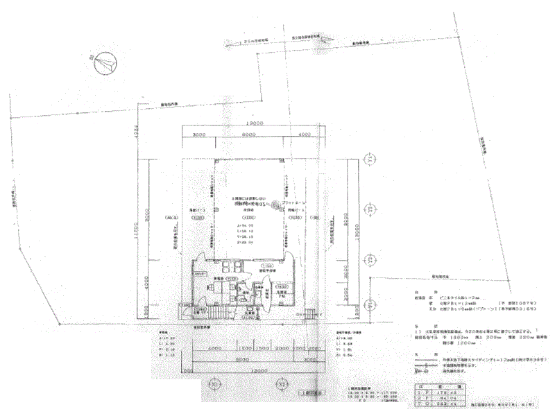
所在地 京都府京都市 西京区桂徳大寺町
賃料(月額) 90万円(坪単価:3,233円)消費税未確認
消費税について、改正後の消費税額が未確認の物件もございますので案内時ご確認ください。
保証金・解約引き等 保証金:500万円
土地面積 920.13m²/278.34坪 構造/階数
用途地域 近隣商業地域
用途地域について
登録日 ? 2026年2月6日 商談有り
沿線/駅 阪急嵐山線/上桂駅 徒歩12分 高速道路出入口 京都縦貫自動車道 沓掛から約5km
各階面積
道路幅員 二方 北西 19m 南東 5m 駐車場
現況 上物有 引渡し 即時
築年月
契約期間 10年 都市計画 市街化区域
建築確認
設備関連 電気引き込み有
都市ガス、上水道、下水道配管あり
周辺状況 *近隣民家有
*10tトラック通行可
*用途地域:近隣商業地域・第一種中高層住居専用地域(一部)
*建ぺい率80%・60%・/容積率300%・200%
*15m第4種高度地区
その他 *契約期間10 年以上
*事業用定期借地権設定契約
*建物解体費用借主負担
*保証金金額要相談(建物による)
*事務所付倉庫でも募集中(賃料100万円(税別))
前テナント様業種
取引態様 仲介
大型車輌 ヤード
近隣住宅 プラットホーム
事務所 クレーン -
リフト/EV
天井高さ 1階:4m  2階:3m
建物間口・奥行き 間口:14.2m  奥行き:9m
初期費用シミュレーション概算
※概算となりますので、実際の初期費用等に関してはお気軽にお問い合わせ下さい。

賃料

900,000円

仲介手数料

990,000円

保証会社金額

900,000円

保証金

5,000,000円

敷金

0円

礼金

0円

日割り賃料


※日割り賃料は1ヶ月を
30日換算で計算しております。

合計:7,790,000円
■ ご利用上の注意
  1. 事前連絡なしの現地への突然の訪問はご遠慮ください。
    募集物件ごとに前テナント入居中・家主事情・テナントの諸事情等もあり、ごくまれですが、直接物件を見に行かれた事によるトラブルが発生しています。
    現地、見に行かれる際は、必ず事前に弊社担当者までご連絡ください。
  2. 現地業者看板には直接連絡しないでください。
    現地看板に連絡されますと仲介手数料の2重請求となってしまう恐れがあります。
    物件についての質問等は必ず弊社(三基建設)TEL 06-6304-0999 までご連絡ください。

    メールでのご質問は toiawase@sanki.info まで
  3. 設備について
    必ずしも法令に基づく届け出等がされていないものもあります。契約時には必ず弊社担当までご確認ください。
  4. 前テナント様業種について
    必ずしも営業可能な業種とは限りませんので用途地域の制限等弊社担当までご確認ください。
  5. 大型車両欄の「可」の表示については前面道路幅員が概ね6m以上の道路として住宅地図上から判断したものです。実際については現地をご確認ください。
  6. 近隣住宅欄の「無」の表示については住宅地図上で隣接する住宅が無く、10m以下の道路を挟んだ向かいに住宅が無いことを基準にしております。実際については現地をご確認ください。
  7. 2階面積が1階面積の3分の1の建物には平家建と記載しております。
  8. 「全文キーワード」による検索は、大型車両・近隣住宅などの「可・不可」「有・無」の項目は検索されません。
  9. 高さ・土地面積について
    高さ等の寸法について、必ずしも現地を計測したものではない場合があります。実際については現地をご確認ください。
    土地面積については航空写真等を利用し計測した概算面積を記載している物件もあります。予めご了承願います。
  10. 賃料以外に、共益費・電気基本料等、家主様に支払うべき費用が発生する場合があります。
    掲載には充分注意しておりますが、入居の際には弊社担当者にご確認ください。
  11. 本ページ更新中に成約することもございます。あらかじめ御了承ください。
この物件に対する問い合わせ
複数の物件を問い合わせされる場合は、お気に入り登録からの一括問い合わせをご利用ください。
※「①」や「㈱」等の機種依存文字は文字化けすることが多いのでなるべくお控えください。

お気に入り一括問い合わせはこちらから
貴社名 担当者名とどちらか必須入力
ご担当者名 会社名とどちらか必須入力
業種 必須入力
お電話番号 必須入力
E-mail 必須入力
移転区分 必須入力
必要なもの
(複数選択可)
  •  
お問い合わせ内容
個人情報の取り扱いをご確認ください。

Eメールでのお問い合わせ : toiawase@sanki.info

三基建設株式会社

三基建設株式会社 本社

〒532-0011 大阪市淀川区西中島1-13-15 SANKIビル [ MAP ]
TEL : 06-6304-0999 / FAX : 06-6304-7384

三基建設株式会社 堺店

〒590-0018 堺市堺区今池町2丁7番16号 [ MAP ]
TEL : 072-233-0999 / FAX : 072-233-0997

当社は大阪府宅地建物取引業協会会員です。[ 宅建協会HP ]
宅建協会新大阪支部に登録されています。[ 新大阪支部HP ]

Copyright © SANKIKENSETSU CO.LTD. All right reserved. Designed by ACCESSWEB INC.