- ★お気に入りに追加
- この物件に対して問い合わせる
- 印刷用ページを開く
- マッチングメール登録へ
| 物件番号 | 3359439 | 物件種目 | 倉庫 |
|---|
| 所在地 | 大阪府大阪市 住之江区新北島2丁目 | ||
|---|---|---|---|
| 賃料(月額) |
120万円(坪単価:9,513円)消費税未確認 消費税について、改正後の消費税額が未確認の物件もございますので案内時ご確認ください。 |
||
| 保証金・解約引き等 | 敷金:240万円 礼金:120万円 | ||
|
建物面積 土地面積 |
417m²/126.14坪 297.65m²/90.04坪 |
構造/階数 | 鉄骨造/2階建ての1~2階部分 |
| 用途地域 |
準住居地域 用途地域について |
登録日
|
2026年1月22日 |
| 沿線/駅 | 大阪メトロ四つ橋線/住之江公園駅 徒歩9分 | 高速道路出入口 | 阪神高速15号堺線 住之江から約1km |
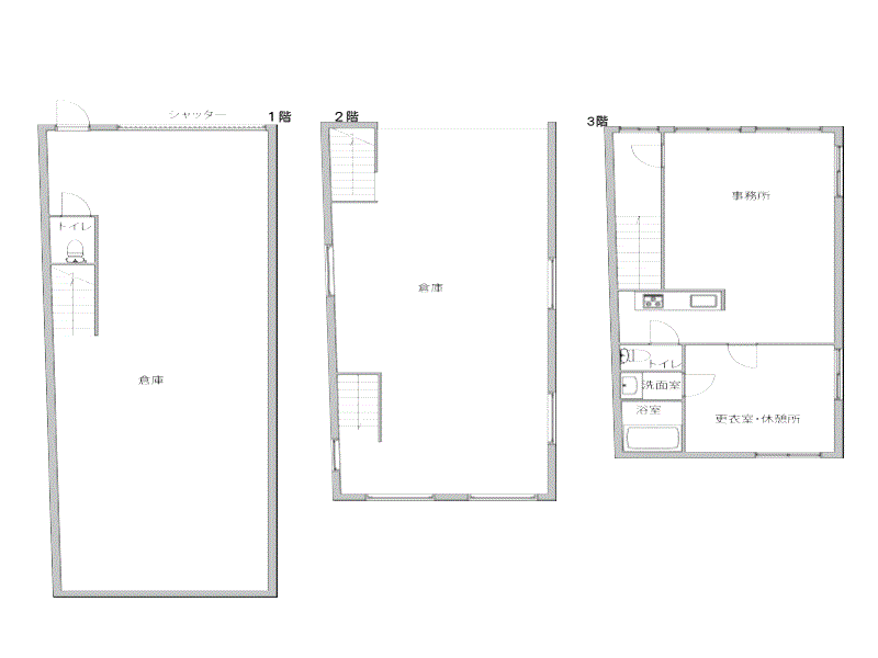
| 各階面積 | 1F:177.03m²/53.55坪 2F:177.m²/53.54坪 3F:63.63m²/19.24坪 | ||
|---|---|---|---|
| 道路幅員 | 北 26m | 駐車場 | 有 |
| 現況 | 入居中 | 引渡し | 相談 |
| 築年月 | 1999年12月 | ||
| 契約期間 | 2年 | 都市計画 | 市街化区域 |
| 建築確認 | |||
| 設備関連 | 事務所有 トイレ 流し台 | ||
| 周辺状況 |
近隣民家有 *用途地域:準住居地域・第一種住居地域 *建ぺい率80%/容積率300%・200% *準防火地域 |
||
| その他 |
*保証会社加入要 日本セーフティー 保証料賃料の100% *半年未満の退去、総賃料2ヶ月分の違約 1年未満の退去、総賃料の1ヶ月分の違約 |
||
| 前テナント様業種 | |||
| 取引態様 | 仲介 | ||
| 大型車輌 | 可 | ヤード | 有 |
|---|---|---|---|
| 近隣住宅 | 有 | プラットホーム | 無 |
| 事務所 | 有 | クレーン | - |
| リフト/EV | - | ||
※概算となりますので、実際の初期費用等に関してはお気軽にお問い合わせ下さい。
賃料
1,200,000円
仲介手数料
1,200,000円
保証会社金額
1,200,000円
保証金
0円
敷金
2,400,000円
礼金
1,200,000円
日割り賃料
日
※日割り賃料は1ヶ月を
30日換算で計算しております。
-
事前連絡なしの現地への突然の訪問はご遠慮ください。
募集物件ごとに前テナント入居中・家主事情・テナントの諸事情等もあり、ごくまれですが、直接物件を見に行かれた事によるトラブルが発生しています。
現地、見に行かれる際は、必ず事前に弊社担当者までご連絡ください。 -
現地業者看板には直接連絡しないでください。
現地看板に連絡されますと仲介手数料の2重請求となってしまう恐れがあります。
物件についての質問等は必ず弊社(三基建設)TEL 06-6304-0999 までご連絡ください。
メールでのご質問は toiawase@sanki.info まで -
設備について
必ずしも法令に基づく届け出等がされていないものもあります。契約時には必ず弊社担当までご確認ください。 -
前テナント様業種について
必ずしも営業可能な業種とは限りませんので用途地域の制限等弊社担当までご確認ください。 - 大型車両欄の「可」の表示については前面道路幅員が概ね6m以上の道路として住宅地図上から判断したものです。実際については現地をご確認ください。
-
近隣住宅欄の「無」の表示については住宅地図上で隣接する住宅が無く、10m以下の道路を挟んだ向かいに住宅が無いことを基準にしております。実際については現地をご確認ください。
-
2階面積が1階面積の3分の1の建物には平家建と記載しております。
-
「全文キーワード」による検索は、大型車両・近隣住宅などの「可・不可」「有・無」の項目は検索されません。
- 高さ・土地面積について
高さ等の寸法について、必ずしも現地を計測したものではない場合があります。実際については現地をご確認ください。
土地面積については航空写真等を利用し計測した概算面積を記載している物件もあります。予めご了承願います。 -
賃料以外に、共益費・電気基本料等、家主様に支払うべき費用が発生する場合があります。
掲載には充分注意しておりますが、入居の際には弊社担当者にご確認ください。 - 本ページ更新中に成約することもございます。あらかじめ御了承ください。
お探しの条件に近い物件
| 種目 |
店舗事務所 |
|---|---|
| 所在地 | 大阪府堺市 中区土師町3丁 |
| 賃料(月額) | 90(坪単価:7,655円) |
| 建物面積 | 388.62m²/117.56坪 |
























